Almanza House
The design, planning, and execution of the interior design of a single-family home in Colombia with a special emphasis on social spaces for entertaining.

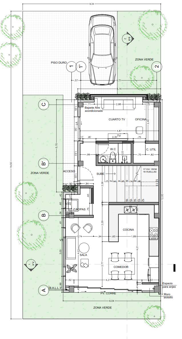
General Floor Plan

Ground Floor

Second Floor
The kitchen is completely open to the living room and
to the backyard, allowing the
space to extend into the
outdoors. This makes the
limited space convertible for
parties or social events.


Kitchen Space


In the living room area,
a green-grey
color scheme provides for a
cozy, yet elegant space.

Master Bath

